Atelier Line ― アトリエライン ―
好きなことに、思いきり没頭できる休日を。


好きなことに、思いきり没頭できる休日を。
絵を描いたり、音楽を奏でたり、ものづくりに夢中になったり。
アトリエラインは、そんな“自分時間”を心ゆくまで楽しむための住まいです。
自然光が差し込むワークスペースや、落ち着いた色調の内装が、集中と癒しのバランスを生み出します。
休日が、あなたの感性を育てる時間に変わる家です。


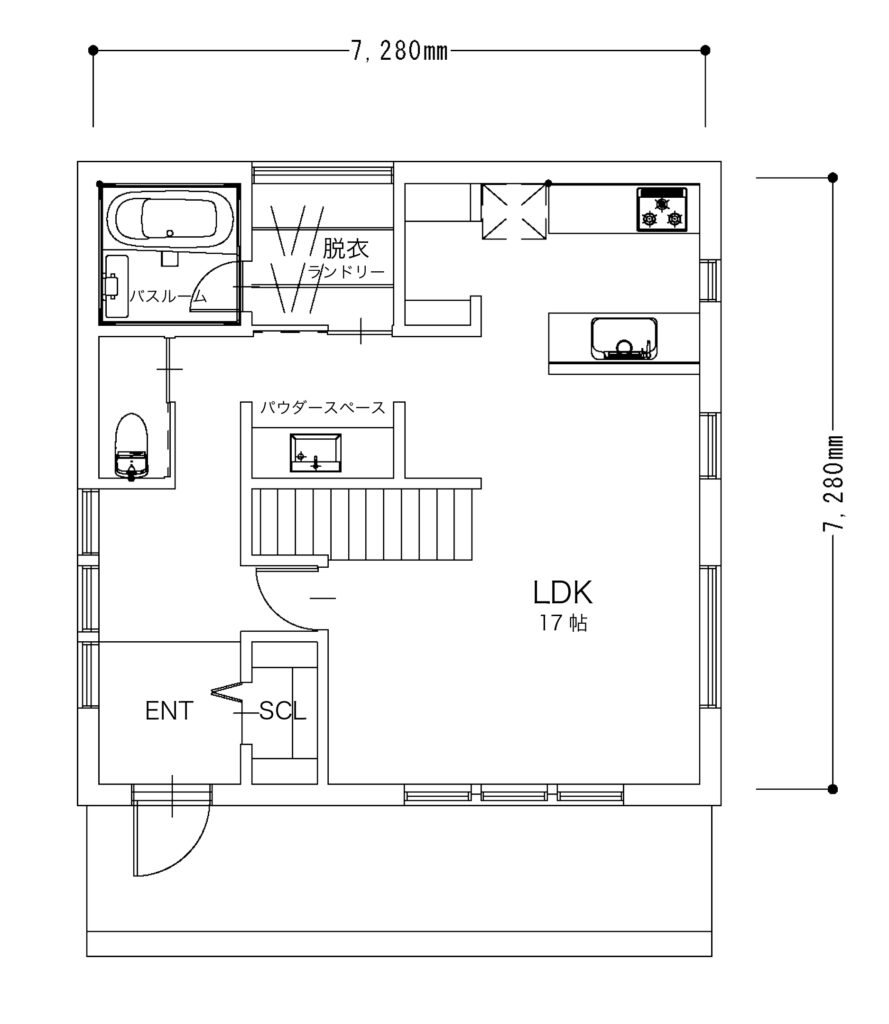
面積
1階床面積 52.99㎡
2階床面積 38.09㎡
延べ床面積 91.08㎡【27.49坪】
施工面積 105.99㎡【32.00坪】(吹抜け 14.90㎡)
STAGE5 22,916,177円(本体価格税込)
STAGE6 27,084,098円(本体価格税込)








