Café Line ― カフェライン ―
“暮らす”ことが、まるでカフェタイム。


“暮らす”ことが、まるでカフェタイム。
カフェラインは、好きな空間で心を整える人のための家。
木の質感とやわらかな光、心地よい空気が流れるリビング。
お気に入りのカップを手に、音楽を聴きながら過ごす時間が日常になります。
休日に訪れるカフェのように、住まいそのものがくつろぎの場所に。

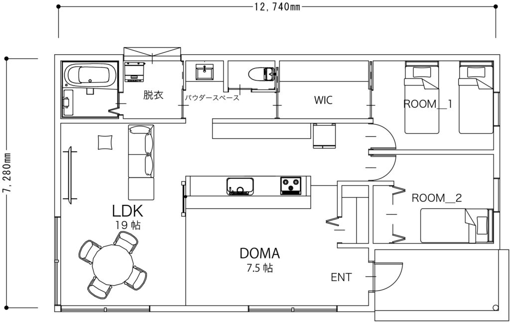
1階床面積 86.12㎡
延べ床面積 86.12㎡【26.00坪】
施工面積 92.74㎡【28.00坪】(ポーチ:6.62㎡)
STAGE5 22,144,045円(本体価格税込)
STAGE6 25,606,790円(本体価格税込)








