Garage Line ― ガレージライン ―
愛車と過ごす時間も、立派な“おやすみ”。


愛車と過ごす時間も、立派な“おやすみ”。
ガレージラインは、車やバイクと過ごす時間を何より大切にしたプラン。
愛車を眺めながらコーヒーを飲む朝、工具を手に静かに過ごす午後。
そんな穏やかな休日を叶えます。
ガレージから居住空間へとつながる動線は、趣味と暮らしを自然に融合させる設計です。


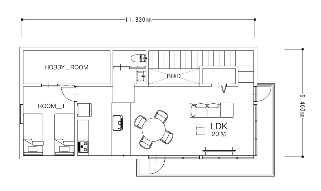
1階床面積 41.40㎡
2階床面積 62.10㎡
延べ床面積 103.50㎡【31.25坪】
施工面積 129.16㎡【39.00坪】
(ポーチ:3.31㎡+ガレージ:19.87㎡+吹抜け:2.48㎡)バルコニー:9.52㎡
STAGE5 27,379,108円(本体価格税込)
STAGE6 32,063,667円(本体価格税込)








