Tataki Line ― 三和土ライン ―
外と中がゆるやかにつながる、穏やかな休日。


外と中がゆるやかにつながる、穏やかな休日。
玄関からリビングまで続く土間が、家と外を心地よく結ぶ三和土ライン。
靴を脱がずに過ごす自由さ、植物を飾ったり、趣味を楽しんだり。
そんな伸びやかな時間がこの家にはあります。
風と光を感じながら、自然体で過ごす休日の心地よさをデザインしました。


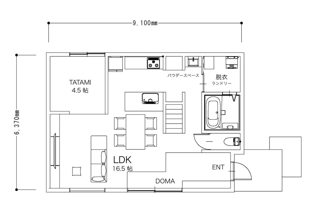
1階床面積 57.13㎡
2階床面積 57.96㎡
延べ床面積 115.09㎡【34.74坪】
施工面積 115.93㎡【35.00坪】(ポーチ:0.82㎡)
STAGE5 23,977,646円(本体価格税込)
STAGE6 28,366,668円(本体価格税込)








